Mieszkanie na nałęczowskiej

WARSZAWA

Projekt zrealizowany na trzecim roku studiów proponuje niewielkie

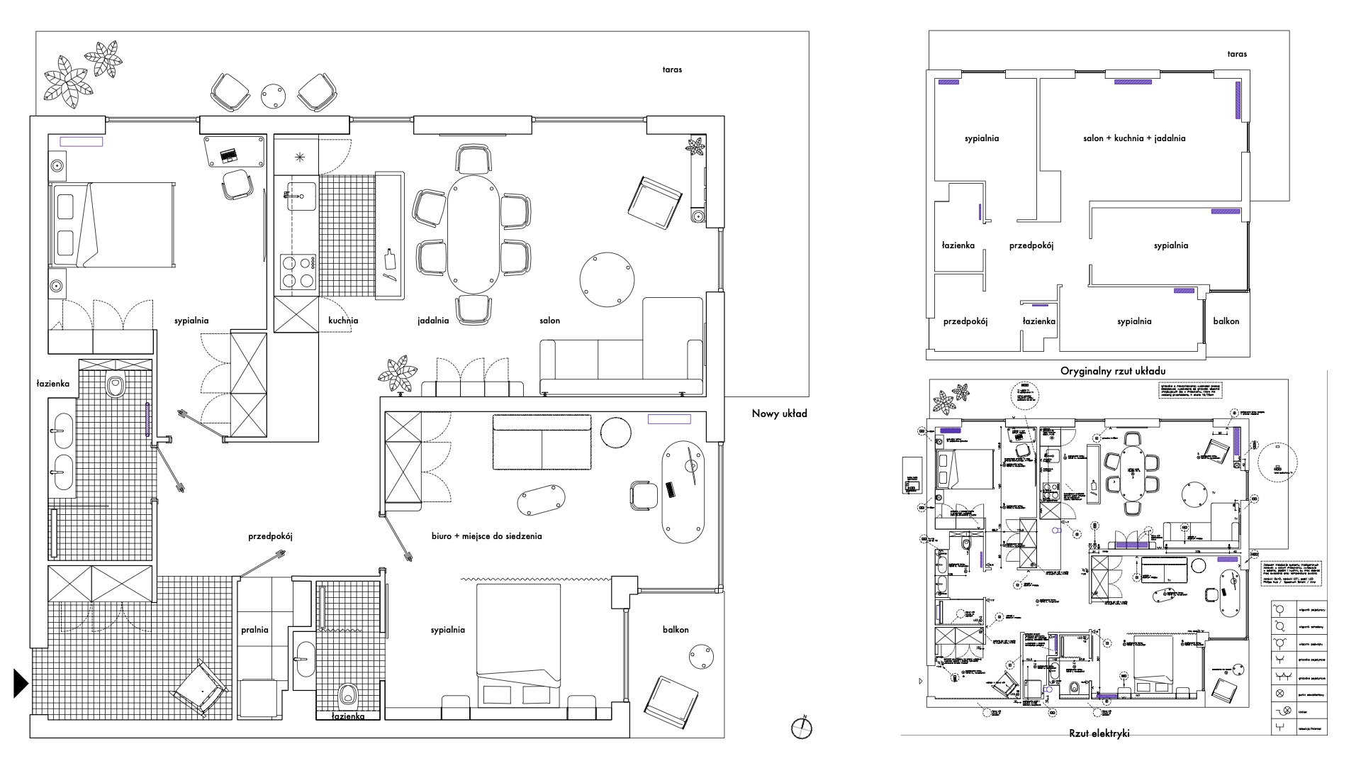
Mieszkanie było projektowane dla małżeństwa z prawie dorosłym już synem. Kolorystyka miała być przytulna ale też energetyczna. Określenie układu funkcjonalnego było najtrudniejszym etapem. Salon znajduje się bowiem na drugim końcu mieszkania co wejście, a okna wychodzą na wschodów i północ. Mieszkanie posiada obszerny salon z kuchnią oraz stołem jadalnianym, dwie sypialnie, dwie łazienki oraz pralnie. W salonie ważne było wyważenie wielkości danej funkcji. Klienci zdecydowali, że oddadzą swojemu synowi wiekszą sypialnie z prywatnym balkonem. W związku z jego wiekiem w jego pokoju znalazła się prywatna łazienka, miejsce do nauki i pracy oraz miejsce do odpoczynku i zapraszania znajomych. Użyte w projekcie materiały są w większości naturalne i autentyczne.

Dodatkowym atutem podniesienia sypialni o wysokość dwóch stopni, było wygenerowanie miejsca na wysuwane dwuosobowe łóżko dla gości. W salonie znalazła się rozkładana kanapa. Tym samym w mieszkaniu o powierzchni nieprzekraczającej 35m2 może spać nawet 6 osób.

projekt – 2022

metraż – 98m²

lokalizacja – Mokotów, Warszawa, Polska

dokumentacja projektowa – Michał Warzec

wizualizacje – J. Rawerska

Wszelkie prawa zastrzeżone. Michał Warzec © 2023